





















1 / 21
PISO DE PRIMERA OCUPACION DE ENSUEÑO EN SANTA CATALINA MALLORCA EN VENTA
SANTA CATALINA · PALMA DE MALLORCA
695.000,00 €
SANTA CATALINA, PALMA DE MALLORCA
Primera ocupación.
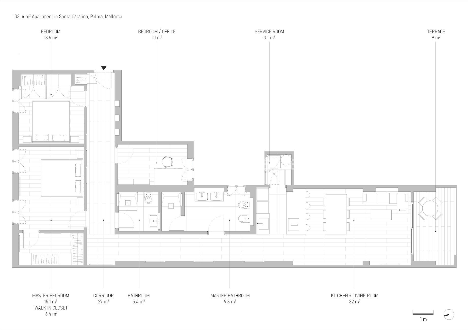
Vivienda de 132 m2 completamente reformada, orientada al sur, con vistas a la iglesia de Verge del Carme y a la Catedral.
En el codiciado barrio de Santa Catalina en Palma, conocido por sus numerosos cafés, restaurantes y boutiques, y a solo unos minutos a pie del Palma Sport & Tennis Club (750 m), de la elegante calle comercial Jaime III (600 m), del mercado de Santa Catalina (550 m) y del pintoresco y exclusivo Paseo Marítimo (800 m), se pone a la venta este lujoso piso.
El moderno piso de 3 dormitorios, equipado con materiales de alta calidad, se encuentra en la tercera planta de un edificio plurifamiliar construido en 1975 y completamente renovado con esmero durante los años 2025/2026 con ascensor.
Este espacioso apartamento de diseño fue completamente vaciado y renovado en 2025: se eliminaron por completo todos los revestimientos de paredes, techos, tuberías, instalaciones eléctricas, ventanas, puertas, etc. A continuación, se instalaron nuevas conducciones de agua, electricidad y ventilación, se levantaron tabiques de obra maciza y se en lucieron. Se aplicó aislamiento acústico y térmico adaptado al clima mallorquín. Las paredes exteriores fueron reforzadas con doble aislamiento.
El resultado es una vivienda completamente nueva, moderna y acogedora de 3 dormitorios para estrenar, con un diseño lumínico exquisito y una superficie habitable total de 132 m2. Estilo escandinavo, tonos beige y grises claros y cálidos, amplio recibidor, tres dormitorios, dos baños, un salón espacioso y una cocina americana blanca de estilo high-tech totalmente equipada con isla central.
Una logia ajardinada exclusivamente con especies autóctonas completa el ambiente.
Ambos dormitorios disponen de armarios empotrados espaciosos en discreto gris con iluminación LED integrada en cada estante. El dormitorio principal cuenta además con un vestidor independiente. También en el pasillo se ha integrado un armario empotrado para ropa de abrigo.
Se han empleado exclusivamente materiales naturales: ventanas de roble macizo de doble acristalamiento, duraderas, resistentes a la abrasión y transpirables, con una densidad de madera de 850 kg/m3 y herrajes de alta gama de Gretsch-Unitas. Todos los alféizares, de 3 cm de grosor, están fabricados con piedra natural Crema Marfil; las encimeras de cocina están realizadas en piedra natural regional Gris Zarci Beige.
En todas las estancias —excepto cocina y baños— se ha instalado un suelo de madera maciza de roble austriaco de 20 mm, cepillado y tratado con aceite.
El baño de cortesía está equipado con lavabo y WC de Villeroy & Boch, ducha a ras de suelo con rociador efecto lluvia Grohe SPA, mampara de ducha de Hüppe y ducha higiénica de Steinberg.
El baño principal dispone de una ducha a ras de suelo espaciosa con rociador Grohe SPA, mampara abatible de Hüppe, doble lavabo de Villeroy & Boch, bidé y WC.
Todo el equipamiento de los baños convence por sus componentes de alta gama de Geberit, Grohe y Villeroy & Boch, grifería elegante de Steinberg, espejos anti-vaho iluminados de Hansgrohe, espejo de aumento con luz, calefacción por suelo radiante y numerosos detalles exclusivos. Los baños están revestidos hasta el techo en tonos gris claro. Para el suelo se han elegido baldosas de gres porcelánico de gran formato con estética de hormigón moderno.
Un sistema de filtrado doble y un descalcificador garantizan agua clara y suave
(el agua del grifo en Mallorca es extremadamente dura y calcárea).
En la cocina, un sistema de ósmosis inversa fijo proporciona agua potable purificada.
Un clima interior agradable durante todo el año está asegurado gracias al sistema de climatización inverter WiFi de bajo consumo de Mitsubishi, que enfría en verano y calienta en invierno.
Toda la vivienda está equipada con la más moderna tecnología Smart-Home.
En el recibidor y en el salón hay un iPad de control desde el que se pueden manejar cómodamente la iluminación, la calefacción, el aire acondicionado, la música, la televisión, el videoportero y muchas otras funciones.
Todas las funciones pueden controlarse también remotamente mediante app.
Un concepto acústico innovador se ha implementado gracias a la instalación de altavoces de techo Fonestar con ángulo de difusión amplio, que proporcionan un sonido excelente en todas las estancias.
Un televisor QLED 8K sin marco con Apple TV está integrado perfectamente en el sistema de sonido, lo que permite al futuro propietario disfrutar de una experiencia de cine en casa y sonido de alta gama.
Distancia al aeropuerto de Palma 12 km (17 min)
Puerta de entrada Puerta blindada Dierre modelo VT5
Puertas interiores Madersan Lisa, puertas interiores lisas blancas
de madera maciza con cierres magnéticos y bisagras invisibles
Manillas de puertas y ventanas Hoppe Verona mate
Ventanas de doble acristalamiento
transpirables de roble con bisagras Gretsch Unitas
Alfeizares en todas las estancias Piedra natural Crema Marfil
Suelos en todas las estancias Roble macizo austriaco de 20 mm
Cepillado y aceitado
Suelos de cocina y baños Baldosas de gran formato de alta calidad
en aspecto de hormigón
Calefacción por suelo radiante bajo las baldosas integrada en el sistema Smart Home
Equipamiento de baños Steinberg, Grohe, Villeroy & Boch, Geberit, Bosch
Cocina y muebles de cocina hechos a medida
Cajones con extracción total y sistema Softclose Puertas y frentes de cajones de alta calidad de 18 mm en blanco brillante con tiradores Nolte
Encimeras de cocina Gris Zarci Beige
Electrodomésticos de alta gama Lavadora-secadora y electrodomésticos
(Bosch Accent Line) empotrados en acero inoxidable:
horno, microondas, frigorífico, lavavajillas y placa de inducción con módulo de extracción integrado – todos de Bosch
Equipamiento de cocina Cubertería WMF Sitello de 60 piezas para 6 pers.
Decantador Riedel Performance
Jarra de agua Stölzle Lausitz Slanted Neck 1 L Vasos de agua Stölzle Lausitz Power para 6 pers. Copas de vino tinto Stölzle Lausitz Power para 6 pers. Copas de vino blanco Riedel “O” para 6 pers. Vajilla Rosenthal Fleurs Sauvages para 6 pers. Vajilla Rosenthal Fleurs des Alpes para 6 pers. Fuentes de servir de las series mencionadas Batería de cocina profesional Le Creuset, 13 piezas Juego de cuchillos Zwilling con bloque, 8 piezas Sacacorchos Zwilling
Tabla de cortar de madera maciza de olivo
Instalación eléctrica Hager, Gira, iluminación LED Philips, Fonestar
Acústica Sistema de sonido Fonestar
Armarios empotrados Hechos a medida, diseño individual
Todos los estantes con iluminación LED integrada
Agua caliente Termo Junkers de 200 litros,
integrado en el sistema Smart Home
Tratamiento de agua Doble filtración, filtro de ósmosis inversa
para agua potable, descalcificador
Todo integrado en el sistema Smart Home
Vegetación en la logia Lavanda, romero, hibisco, geranios, etc.
Riego de las plantas en la logia Riego automático
Integrado en el sistema Smart Home
Climatización y calefacción Sistema Mitsubishi WiFi en todas las estancias
Integrado en el sistema Smart Home
Internet Fibra óptica de 1 Gbit/s
Gastos mensuales aproximados Cuota de comunidad aprox. 85 €
Impuesto IBI anual aprox. 325 €
